Forgot password? Sign Up!

Listing Details

4414 Comanche Springfield, IL 62711
$299,000
Your Rating:
Favorite

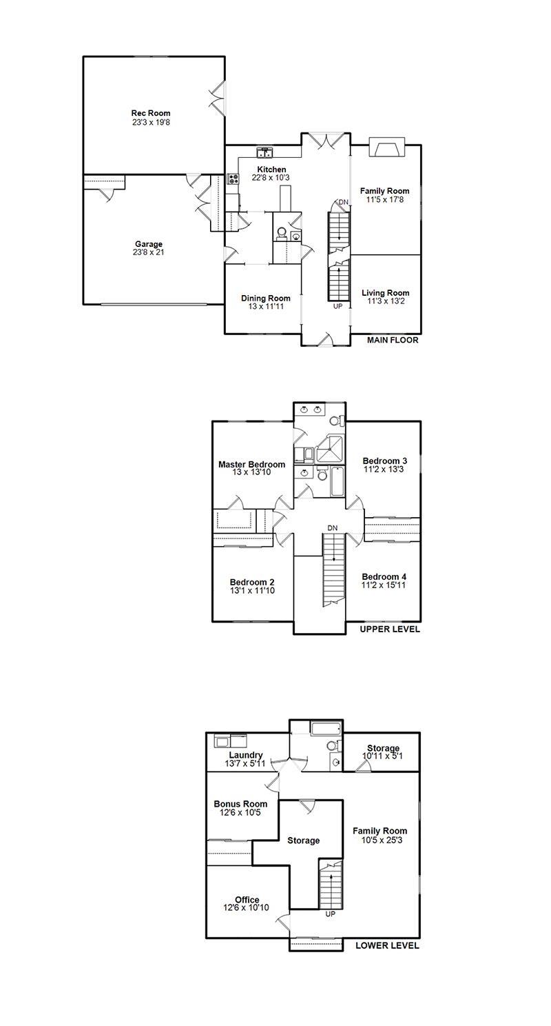
Located in Pleasant Plains Schools this Springfield 2-story has tons to offer. 4 separate living spaces, 4 bedrooms, with a possible 5th plus an at-home office. Abundant storage throughout the home and wide hallways. The main floor boasts a formal DR, living room, family room, a white kitchen with peninsula and storage pantry. Another lrg room off the garage with separate heating/cooling with access to back maintenance free deck, can be studio, workout rm, workshop or 2nd office. Upper level gives 3 beds plus master en-suite. Master has walk-in closet, full bath w heated floor & glass walk-in shower and a bonus stackable w/d. Relax in the basement in the theater room (projector + screen + surround sound stays), office, full bath, 2nd laundry area and possible 5th bed (no window). This home has so much to offer, Pre-inspected, selling as-is. Take a look today

Square Feet: 3463 Bedrooms: 4

Listing

Listing Price:299000
List Date:2022-06-25
Update Date:2022-07-02T18:31:47.3
MLS #:Ca1015196
Year Built:2003
Legal Description:Lot 77 Western Knolls Plat 2
APPLIANCES:Disposal,Dryer,Microwave Oven,Range/Oven,Refrigerator,Washer

Location

Address Number:4414
Address Street:Comanche
City:Springfield
State:Il
Zip:62711
Address:4414 Comanche Drive
County:Sangamon
Subdivision:Western Knolls
High School/School District:Pleasant Plains District #8

Dwelling

Total SQFT:2582
Garage Y/N:Yes
Style:2 Story
Fin Main Level SQFT:1579
Fin Upper Level SQFT:1003
Fin Basement SQFT:881
Total Basement SQFT:1003
GARAGE/PARKING:Attached
HEATING/COOLING:Gas,2+ Heating Systems,Forced Air,Water Heater - Gas,Central Air,Wall Unit(S)
WATER/SEWER:Public Water,Public Sewer,Sump Pump

Taxes / Expenses

Sale/Rent:For Sale
Parcel ID#/Tax ID:13-35.0-452-019
Annual Taxes:5115
Tax Year:2022
TAX EXEMPTIONS:Homestead/Owner Occupied

Interior

# Fireplaces:1
INTERIOR AMENITIES:Garage Door Opener(S),Blinds,Ceiling Fan,Foyer 2 Story,Window Coverings,Hi-Speed Internet Availbl
FIREPLACE:Family Room,Gas Logs

Rooms

# Bedrooms:4
Living Room Level:Main
Living Rm Flooring:Carpet
Family Room Level:Main
Family Room Flooring:Carpet
Formal Dining Room Level:Main
Formal Dining Rm Flooring:Hardwood
Kitchen Level:Main
Kitchen Flooring:Hardwood
Den/Office Level:Lower
Den/Office Flooring:Carpet
Rec Room Level:Main
Rec Room Flooring:Hardwood
Laundry Room Level:Basement
Laundry Room Flooring:Other
Master Bedroom Level:Upper
Master Bedroom Flooring:Carpet
Bedroom2 Level:Upper
Bedroom2 Flooring:Carpet
Bedroom3 Level:Upper
# Full Baths-Basement:1
# Full Baths - Upper:2
# 1/2 Baths-Main:1
# of Garage Remotes:2
Living Room Length:13.2
Living Room Width:11.3
Family Room Length:17.8
Family Room Width:11.5
Formal Dining Rm Length:13
Bedroom3 Flooring:Carpet
Bedroom4 Level:Upper
Bedroom4 Flooring:Carpet
Addl Room1 Level:Lower
Addl Room2 Level:Lower
Total Full Baths:3
Total 1/2 Baths:1
Total Baths:4
Rec Room Length:23.3
Rec Room Width:19.8
Laundry Room Length:13.7
Laundry Room Width:5.22
Master Bedroom Length:13
Master Bedroom Width:13.1
Bedroom2 Length:11.1
Bedroom2 Width:13.1
Bedroom3 Length:11.2
Bedroom3 Width:13.3
Bedroom4 Width:11.2
Bedroom4 Length:15.11
Addl Room1 Length:10.5
Addl Room1 Width:12.6
Addl Room2 Length:25.3
Addl Room2 Width:10.5
Garage Length:21
Garage Width:23.8
KITCHEN/DINING:Dining Formal,Eat-In Kitchen,Island,Pantry

Exterior

EXTERIOR:Vinyl Siding
BASEMENT/FOUNDATION:Finished,Full,Concrete

Grounds / Land / Lot

Area/Tract:Springfield
Approx Lot Size:85 X 125
LOT DESCRIPTION:Level

Photos

Map

View on Google Maps.

View on Bing Maps.

Listed by: The Real Estate Group, Inc.  /   MLS: 1015196